Oriental S R VILLA

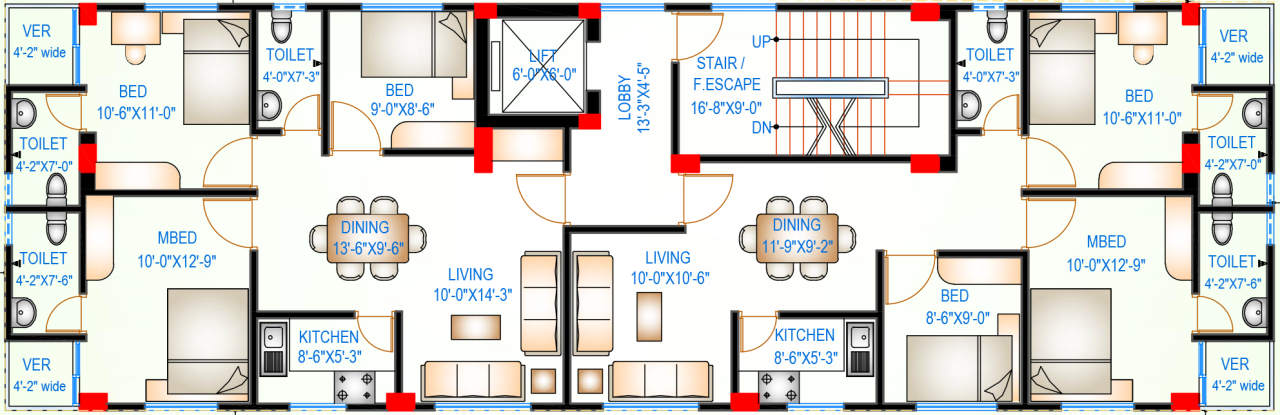
Oriental S R Villa is a residential apartment project offering spacious 3-bedroom homes. The project features well-planned flats of 1219 sq.ft and 1292 sq.ft, designed for comfortable living with ample natural light and ventilation, and is architecturally designed by ARC ARCH. HERITAGE LTD.

At a Glance

PLOT# 91/3, MONESHSHAR ROAD, ZIGATOLA, DHAKA
  • ARCHITECT ARCH.HERITAGE LTD.
  • Apartment Size (Sft) 1219 & 1292 Sq Ft
  • TOTAL NUMBER OF APARTMENTS 12
  • Bedrooms 3
  • Bathrooms 3
  • Property Status Under Construction
  • Property Type Residential
  • FACING EAST
  • Land Size 5 Katha
Property Size(Sq Ft)
0
No Of Floors
G+ 0
No Of car Parking
0
No Of Lift
0

Gallery

Contact us

Let’s Build Together

Looking for a quick consultation? Submit your details and our experts will get in touch as soon as possible.


Related

Related Projects

Compare listings

Compare
wgsza
  • wgsza
×

Download Brochure